Immeuble en ordre : Appartement et duplex

A vendre : 399000€

A propos de ce bien

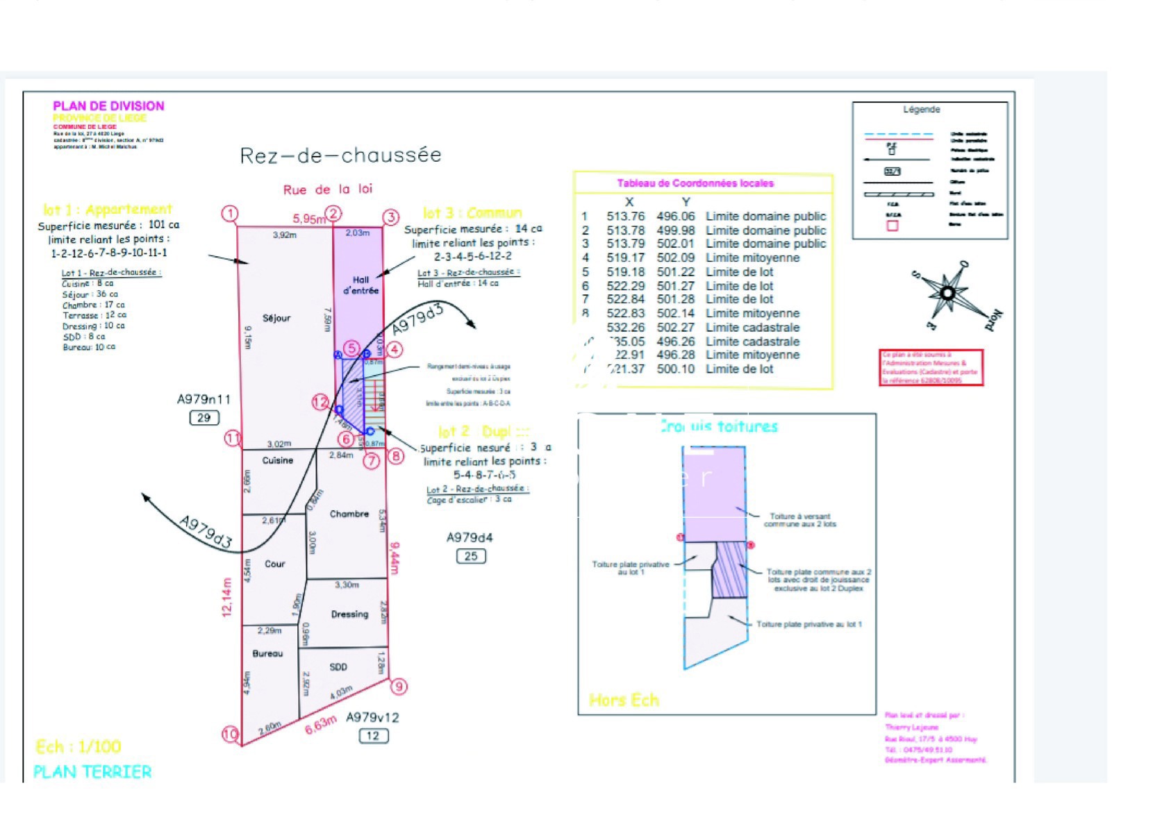
THÔNE IMMOBILIER vous propose cet immeuble en ordre urbanistique (et divisé en deux logements) composé d'un appartement trois chambres à rénover (possibilité d'acquérir après travaux moyennant supplément) de 110 m² et d'un duplex 2 chambres avec bureau entièrement rénové en 2023/2024 de 125 m² avec terrasse. L'immeuble est idéalement situé à seulement 2 pas de la Haute école de Saint-Luc. Il est composé comme suit : Au sous-sol : 2 caves, les compteurs. Au rez-de-chaussée : Un hall d'entrée commun, l'accès au premier appartement, lequel est composé d'un séjour de 36 m², une cuisine, 3 chambres de 17, 10 et 10 m², une salle de douche et une terrasse. L'appartement est à rénover (à l'exception du chauffage central et de l'électricité conforme). Situé au premier et deuxième étages, le duplex offre un hall d'entrée, un lumineux séjour ouvert sur une cuisine, un W.C., deux chambres de 13 m² et 16 m² ainsi qu'un bureau de 8 m², une salle de bains avec W.C.. Divers : Chauffage central Gaz, Châssis triple vitrage, façade sablée, Toit neuf et isolé, électricité conforme, proche de toutes commodités (transports, commerces, écoles). Prix : 399.000 € Possibilité d'acquérir uniquement (sous réserve d'acceptation des propriétaires). Les informations sont non contractuelles et sont données à titre indicatif. Cette annonce ne constitue pas une offre. INFORMATIONS COMPLEMENTAIRES (PLANS, VISITES VIRTUELLES 360°) VISIBLES SUR WWW.THONE-IMMOBILIER.BE

Informations complémentaires

Disponibilité A l'acte (01/02/2025)
Revenu cadastral 1140 €
Label PEB C
Code PEB 20240905002019
Consommation Spécifique d’Energie Primaire 204 kwh/m²/an
Certificat d'électricité oui, conforme
Risque d'inondation pas situé en zone inondable
Photo de Manon Thône

Ce bien vous intéresse ?

Contactez-nous !

Chez Thône Immobilier, nous assurons la meilleure expérience pour votre recherche. N’hésitez pas à nous contacter pour en discuter !

Contactez-nous +324 70.81.62.39